手機:15662672636
電話:15662672636
郵箱:didihay@qq.com
地址:山東省濟南市濟陽縣
發布時間:2024-12-28 點此:13224次
2、室外人貨電梯的基礎形式根據現場實際情況,1#、2#、3#確定直接安裝于地下室底板上。根據現場實際情況,確定4#樓人貨電梯安裝于地下室頂板上(300cmC35砼)。
3、本工程為高層全現澆框架結構。建筑物抗震設防烈度為7度,設計標高±0.00相當于絕對標高:65.8m(黃海高程);地基與基礎工程,采用高強預應力管樁承臺及底板基礎。主體結構及裝修階段施工時,垂直運輸機械采用SC200/200施工升降機3臺;垂直運輸機計劃安裝時間為結構8層開始。根據施工現場的場地情況及建筑物的平面位置,確定每棟各一臺施工升降機。
4安裝高度:
(1)1#、2#、3#樓 人貨電梯安裝高度為84米;
(2)4# 樓人貨電梯安裝高度為72米;
二、編制依據
本工程方案編制,施工過程,及驗收依據以下標準及規范:
1、本工程地質勘察報告(見工地資料);
2、SC200/200型施工升降機使用說明書;
3、《施工升降機安全規程》GB10055-2007;
4、《生產經營單位生產安全事故應急預案編制導則》GB/T 29639-2013;
5、《建設施工高處作業安全技術規程》JGJ80-91 ) ;
6、《建筑機械使用安全技術規程》JGJ 33-2012;
7、《建筑施工特種作業人員管理規定》建字【2008】75號;
8、《建筑地基基礎設計規范》(JGJ94-2008);
9、《建筑起重機械安全監督管理規定》(中華人民共和國建設部令第166號);
10、《廣東省實施細則》(粵建質[2011]13號);
11、《建筑施工升降機使用、拆卸安全技術規程》JGJ215-2010;
12、《建筑施工安全檢查標準》JGJ59-2011;
13、《施工現場臨時用電安全技術規范》JGJ46-2005;
14、《機械設備安裝工程施工及驗收通用規范》GB50231-2009;
三、設計概況1、所選用施工電梯的簡介
1.1、SD200型施工電梯整體結構組成
(1)外籠:外籠由固定標準節的底盤和防 組成。外籠門由機械和電氣鎖定,除非吊籠落下來,外籠門將不會打開。如外籠門未開,吊籠將不能啟動。
(2)標準節:每節標準節長1508mm,截面中心距一般為650*650齒條模數為8mm。多節標準節通常用M24螺栓相連接組成導軌架,通過附墻件與建筑物固定,作為吊籠上下運行的導軌。標準節可采用熱浸鋅處理,以提高標準節的強度和防腐性能。
(3)附墻架:沿導軌架高度,一般每隔3~10.5m安裝一個附墻架。有多種型號的附墻件,可根據現場實際情況選定。
Ⅱ型附墻架的安裝

Ⅱ型附墻架連接尺寸
(3)吊籠:吊籠為一種鋼結構,由安裝在吊籠上的滾輪沿導軌架運行。并沒有進、出口門(即單、雙開吊籠門),可通過調整下門輪的位置,以確保門與兩導軌之間的間隙一致。吊籠上設有安全鉤(亦可設電氣控制)以防止吊籠從導軌架頂部脫落。在安裝時,吊籠頂部可作為工作平臺,由安全欄桿圍住。頂上有一活板門通過配備的專用梯子,方便地攀登到頂上進行安裝和維修。
(4)傳動機構:由電動機、電磁制動器、彈性連軸接、蝸輪蝸桿減速機及傳動齒輪等組成,傳動機構彈性連接在吊籠上,通過齒輪與齒條咬合,使吊籠運行。傳動機構配有變頻調速系統,提高了其制動的平衡性。升降速度可以隨意調控。
(5)限速器:單齒限速器由外殼、制動錐鼓、離心塊、彈簧等組成。當吊籠超速時,限速器里的離心塊克服彈簧拉力帶動制動錐鼓旋轉,與其相連的螺桿同時旋進,制動錐鼓與外殼接觸逐漸增加摩擦力,確保吊籠平緩制動。
(6)對重:對重主要用于在不改變變電能消耗下增加升降機的載重量。對重由鋼絲繩通過導軌架頂部的天輪系掛于吊籠頂部。升降機的進出通道不允許設在對重下方。連接對重的鋼絲繩為兩根。
(7)吊桿:吊桿安裝在吊籠頂上,在安、拆導架時用來起吊標準節或附墻架零部件。手動吊桿上的手搖卷揚機具有制動功能,起吊重物時按順時針方向搖動搖把,停止搖動并平緩地松開搖把后,卷揚機即可制動。放下重物時,則按相反方向搖動。
(8)電纜導向裝置:用于使接入吊籠內的電纜線在吊籠運行時,不偏離電纜通道,保持在固定的位置,確保吊籠正常運行。電纜筒結構比較簡單,無專門的電纜導向軌道,因而受風力影響較大,通常只用于安裝高度不大或風力較小的場合。
Ⅱ型附墻架與電纜保護架電纜筒外置時安裝
(9)安全電控系統:安全電控系統由電路里設置的各種安全開關及其它控制器件組成。在升降機運行時發生異常情況,將自動切斷升降機電源,使吊籠停止運行,以確保升降機的安全。吊籠的單、雙門上及吊籠頂部活板門上均設有安全開關,如任一門開啟或未關閉,吊籠均不能運行;鋼絲繩錨點處設有斷繩保護開關;吊籠上、下限位開關、減速器限位開關和極限開關,當吊籠行至上、下終端站時,可自動停車,若此時因故不停車超過安全距離時,極限開關自作切斷總電源,使吊籠制動。此外在限速器尾蓋內設有限速保護開關,限速器動作時,通過機電連鎖切斷電源。
(10)超載保護器:吊籠內配置有超載保護器,當吊籠超載時,警鈴報警,吊籠不能啟動。
(11)樓層呼叫系統:配置樓層呼叫系統,有設置在各樓層的呼叫按鈕,通過無線電發射器,將信息傳遞到吊籠內的解釋器,當樓層有人呼叫時,吊籠內的主機有樓層提示和語音播報。
1.2、主要技術參數
備注:根據現場實際確定具體安裝的施工電梯型號規格。
2、施工電梯安裝2.1施工電梯平面布置
施工電梯的定位應盡量滿足施工要求及避免交叉施工的影響,因此,本項目施工電梯基礎位置按下圖所示擬定位置布置,具體要求與詳細尺寸位置在安裝時根據現場實際確定。各棟施工電梯安裝位置如下:
1、1#樓施工電梯安裝于(1-8)~(1-12)/(1-A)軸位置,人貨梯基礎豎向中心線與(1-8)~(1-12)中心線重合,水平中心線距離結構外側3.0米,人貨梯基礎尺寸為4米*6米。各棟施工電梯安裝具體擺放位置見附圖(施工人貨電梯平面布置圖)。
2、2#樓施工電梯安裝于(2-8)~(2-12)/(2-A)軸位置,人貨梯基礎豎向中心線與(2-8)~(2-12)中心線重合,水平中心線距離結構外側3.0米,人貨梯基礎尺寸為4米*6米。各棟施工電梯安裝具體擺放位置見附圖(施工人貨電梯平面布置圖)。
3#樓施工電梯安裝于(3-8)~(3-12)/(3-A)軸位置,人貨梯基礎豎向中心線與(3-8)~(3-12)中心線重合,水平中心線距離結構外側3.0米,人貨梯基礎尺寸為4米*6米。
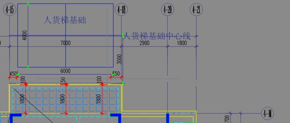
4#樓施工電梯安裝于(4-15)~(4-18)/(4-M)軸位置,人貨梯基礎豎向中心線與(4-15)~(4-18)中心線重合,水平中心線距離結構外側3.0米,人貨梯基礎尺寸為4米*6米。各棟施工電梯安裝具體擺放位置見附圖(施工人貨電梯平面布置圖)。
各棟施工電梯安裝具體擺放位置見附圖(施工人貨電梯平面布置圖)。

1#樓人貨梯定位圖

2#樓人貨梯定位圖

3#樓人貨梯定位圖

4#樓人貨梯定位圖
2.2施工電梯附著設計
(1)以3#樓為例

第1道附著: 2樓樓面 第2道附著: 5樓樓面
第3道附著: 8樓樓面 第4道附著: 11樓樓面
第5道附著: 14樓樓面 第6道附著: 17樓樓面
第7道附著: 20樓樓面 第8道附著: 23樓樓面
第9道附著: 天面
自由端高度: 6米 總高度:81米 (54節)
四、施工準備及計劃1、技術準備
1)編制《施工電梯安裝安全專項施工方案》;
2)項目技術負責人對管理人員及工人進行安全技術交底;
2、人員準備

技術負責人:羅春平
安全員:陳海平
電氣工程師:廖肇強
安拆班長:羅銳邦
安拆班組成員:起重設備安拆工、電工、塔吊司機、塔吊指揮、司索工、汽車吊司機。
3、材料、構件計劃4、 器械、設備計劃
專用扳手4把、M24扳手4把、M16扳手4把、300×36扳手2把、十字螺絲刀1把、多用鉗2把、0.7Kg錘2把、大錘1把、箱子40×30×30cm2個、Φ10mm鋼絲繩2條,4m/條、撬釬2條、鐵絲5Kg、安全帽10頂、安全帶6條、滅火器2個、對講機2部。
5、進度計劃
標示內容:各棟樓的材料構件進場時間、安裝時間、使用時間、拆除時間
五、施工方法1、安裝工藝程序
按原廠說明書程序正常安裝,流程如下:
升降機底盤安裝及校平→安裝外籠、吊籠→安裝線纜→安裝標準節至第一道附墻處 →安裝第一道附墻裝置→按上述4)項、5)項程序安裝至使用高度→安裝電纜導向裝置→完善層門裝置→試運轉,調試升降機→組織驗收并交付使用
3、安裝工藝3.1、吊籠、外籠安裝
1)將基礎表面清掃干凈。
2)用起重設備吊住吊籠上的吊點。
3)將升降機吊起就位。
4)將地腳螺栓安裝好。
5)上傳動升降機將吊籠就位、安裝好地腳螺栓后,再安裝一節標準節。
6)松動電動機上的制動器,方法是:首先拆下兩個開口銷,拆掉前在螺母開口處做個記號,便于復位,而后旋緊兩個螺母,務必使兩個螺母平行下旋,直至制動器松開可隨意撥動制動盤為止。
7)用起重設備吊起傳動小車。
8)從標準節上方使傳動小車就位。
9)將傳動小車與吊籠的連接耳板對好后,穿入銷軸,并固定。
10)將制動器復位。
11)用上述安裝方法安裝好升降機的另半部分,將外籠另半部分用螺栓連接起來。
12)用水平儀或線墜測量導軌架的垂直度,保證導軌架的各個立管在兩個相鄰方向上的垂直度≤1/1500。
13)在地腳螺栓處底盤和基礎間墊入不同厚度的調整鋼板,用以調整導軌架的垂直度。
14)當導軌架調整到垂直時,用350N·m的力矩壓緊4個地腳螺栓。
15)用同樣的方法調整外籠門框的垂直度,使外籠門框的垂直度在兩個相近方向≤1/1000。
16)安裝好吊籠頂上的護身欄桿。
17)調整門鎖。
由于運輸需要,當將升降機外籠解體時,應先將外籠組裝好,并調整好導軌架及門框的垂直度,然后按前述方法,將吊籠就位。
3.2、吊籠、外籠安裝完畢后的調整
1)檢查所有用于運輸的墊木或螺栓等是否全部除掉。
2)齒輪與齒條的嚙合側隙應保證0.2-0.3mm。
3)導輪與齒條背面的間隙為0.5mm。
4)各個滾輪與標準節立管的間隙為0.5mm。
5)所有門應開關靈活。
6)安裝緩沖彈簧。
3.3、限位開關和極限開關碰鐵安裝
升降機設有自動復位型的上、下限位開關以及非自動復位型的交流極限開關。上、下限位開關以及交流極限開關安裝在吊籠安全器安裝板上,位置已定。
3.4、防沖頂裝置安裝
在導軌架頂部靠吊籠側,其中防沖頂裝置的錐套對準導軌架立管內孔,用M24螺栓緊固。
3.5、吊桿安裝
將吊桿放入吊籠頂部安裝孔內,即可使用。注意安裝前應加入潤滑脂。
3.6、導軌架的安裝
1)將標準節兩端管子接頭處及齒條銷子處擦試干凈,并加少量潤滑脂;
2)打開一扇防護欄桿,將吊桿上的吊鉤放下,并吊住標準節吊具;
3)用標準節吊具鉤住一節標準節,帶錐套的一端向下;
4)搖動手搖卷揚機,將標準節吊至吊籠頂部,并放穩;
5)關上防護欄桿,起動施工升降機。當吊籠升至接近導軌架頂部時,應點動行駛,直至吊籠頂部距導軌架頂部大約300mm時停止;
6)用吊桿吊起標準節,對準下面標準節立管和齒條上的小孔放下吊鉤,用螺栓緊固;
7)松開吊鉤,將吊桿轉回,用300N·m的擰緊力矩緊固全部螺栓;
8)按上述方法將標準節依次安裝到所需高度為止,同時安裝附墻架,并檢查導軌架的垂直度。安裝垂直度可用經緯儀或其它檢測垂直度的儀器或方法來測量,其結果必須符合下表的規定;
導軌架垂直度允許偏差
9)若利用現場的起重設備如塔吊安裝導軌架,可先將4~7節標準節在地面上連成一組,然后吊上導軌架。
10)最后一道附墻架以上的導軌架懸臂長度≤7.5m。
3.7、II型附墻架安裝
1)在導軌架上安裝兩根方管,用螺栓堅固。
2)將兩根管與附墻座連接。
3)用螺栓及銷子將其余部分連接起來,調節好各方向的間距,并同時校正導軌架的垂直度。
4)旋緊所有螺栓,慢慢啟動升降機,確保吊籠不與附墻架相碰。
注意附墻架的最大水平傾角不得大于±8°。
3.8、電纜保護架安裝
1)用起重工具將電纜卷懸掛于電纜筒上方。
2)放出約2.5m的電纜,以便把電纜接到電源箱內。
3)從電纜筒底部拉出電纜至電源箱,暫不要連接。
4)將電纜一圈一圈順時針放入電纜筒中,盡量使每圈一樣大,其直徑約小于電纜筒徑。
5)將電纜固定在電纜托架上。
6)將電纜接至電源箱內,起動施工升降機檢查電纜是否纏繞。
7)在導軌架加高的過程中要同時安裝電纜保護架。
8)調整電纜保護架以及電纜托架的位置,確保電纜在護架"U"形中心。
9)電纜筒外置時的安裝:電纜筒外置時,II型附墻架與電纜保護架,以及吊籠與挑線架的連接情況如下圖。
Ⅱ型附墻架與電纜保護架電纜筒外置時安裝
3.9、層門安裝
各停車站應設置門或停層欄桿,并與吊籠電氣或機械聯鎖。
3.10 、驗收
上述所有工作完成后,由生產經理組織施工電梯安裝單位、施工單位、監理單位進行驗收,驗收合格后。報請當地安全生產監測中心對本機檢測,經檢測合格后才可以交付項目使用。
4、特殊情況說明
(1)鑒于本工程電梯安裝高度,為增加電梯導軌架的穩定性,采取電梯底部安裝20m加強節的技術措施。
(2)遇有特殊情況應向有關人員報告,確定新方案后,嚴格按新方案執行,不得擅自蠻干。
六、安全保證措施1、安裝拆除措施
1.1、安裝措施
1)安裝前須認真學習施工電梯使用說明書,嚴格執行安全技術操作規程。
2)安裝前組織安裝人員進行安裝安全技術交底,明確各安裝人員的工作內容及職責。
3)安裝人員戴好安全帽,在高空作業時應正確使用安全帶,做到一切行動聽指揮,作業人員必須持證上崗。
4)安裝現場應安排人員進行警戒,拉警戒線,非安裝人員不得進入。
5)級以上大風、大雨、大霧等惡劣氣候,嚴禁進行安裝作業。
6)安全員安排現場安全防護,監督整個安裝作業,制止違章行為。
7)嚴格保管好工具、螺栓,作業期間應注意工具、螺栓的放置,以防高空墜落。
8)在安裝過程中,應注意各構件完好無損。
9)施工電梯安裝完畢后,必須對各機械部位及電氣等各方面進行全面的調試檢查。
10)檢查導軌架、附墻、限位擋板和擋塊安裝應正確,符合要求。
11)整個架體安裝完成后,應進行靜、動載試驗,試驗結果應符合設計標準要求。
12)電氣接線應正確,各安全限位開關、制動器靈敏可靠。
13)各方面檢查調試正常自檢合格后,應報請湖南省檢測中心檢測,檢查合格后,
14)操作人員在開機前,先檢查各安全門、卸料平臺防護門的情況,確認完好、可靠安全后,方可啟動,嚴禁設備帶病工作、超載運行。
2、安全使用及監督措施
認真貫徹執行"安全第一,預防為主"的安全生產方針,樹立"以人為本,安全第一"、"責任重于泰山"的安全生產意識。項目部相關部門要加強安全生產的管理,狠抓項目部制定的各項安全管理制度的落實,符合國家的安全法律、法規的要求,加強平時的監督檢查,及時排除隱患,做到"防范勝于救災"。
(1)項目部加強重要危險源的管理,根據起重機械施工作業的特點,從機械進場到出場的各個階段,要求班組每日一次檢查、項目部每月一次檢查,實施設備使用全過程的管理。
(2)項目部委派主管安全的副經理每月定期組織一次安全大檢查,以及針對工程特點進行不定期的檢查。
(3)完善預防和預警機制,加強緊急搶險救援組織機構和隊伍建設,制定并落實相應的應急工作預案。
(4)做好購齊必要的應急救援物資準備,如藥箱、繃帶、一般急救藥品、溫度計、手術剪等。常用工具如扳手、鋼釬、大錘、鐵鍬、手電筒等。做好工具維護、保養,保證正常使用。
(5)項目部建立安全值班制度,設值班電話并保證24小時輪流值班。按照早發現、早報告、早處置的原則,項目指揮部接到應急事件報告后應立即奔赴現場,指揮、協助現場急救工作。確保應急處理工作高效、有序地進行,使突發事件得到控制或終止,最大限度地減輕事件所造成的災害。
(6)在項目部范圍內廣泛開展進行自救知識技能宣傳和培訓,自救知識培訓包括處理簡單外傷、輕微中毒及骨折固定、止血等力所能及的有效的救援技能。以便現場發生安全生產事故,項目部快速組織搶救的同時,受傷者或附近人員能盡力組織自救,現場人員保持頭腦清醒,在第一時間施救,待項目部搶救小組到達后提供及時、詳細、準確的傷亡信息及救援措施,避免造成更大的經濟、人員損失。
(7)搶救結束后由指揮長指派有關人員組成事故調查組,在指揮長的領導下工作。做媒傷亡經濟損失的統計,上報上級有關部門調查、處理。寫出事故報告,汲取事故教訓,及時進行整改,并對責任人給予責任追究。
七、應急預案
為貫徹落實"安全第一、預防為主"的方針,加強起重設備裝拆安全的監督管理,預防和減少起重設備裝拆安全方面可能出現的緊急情況,以及對可能出現的緊急情況進行有效控制,針對緊急情況做出快速響應,依據公司《生產安全防控和應急預案》,針對工程現場裝拆工作的具體情況,特制定本預案。
1、應急組織機構及職責
1.1、應急指揮機構
××項目應急指揮中心(指揮部),領導本企業對突發事件的應急處理和生產安全防控工作。
相關推薦
